※ご購入の際には既定の仲介手数料がかかります
三条市APAシティプレミア608号室
|
| 所在地 | 新潟県三条市東三条1丁目 APAシティプレミア |
|---|---|
| 交通 | JR信越本線 東三条駅 |
| 築年月 | 平成23年1月 | 新築/中古 | 中古 |
|---|---|---|---|
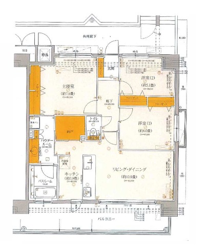
| 面積 | 79.81m² | 計測方式 | |
| バルコニー | 向き | ||
| 建物階数 | 地上9階 | 部屋階数 | 6階 |
| 部屋/区画番号 | 608 | 総戸/区画数 | |
| 建物構造 | RC | ||
| 間取内容 |
|
||
| 駐車場 | 専用ガレージ | 取引態様 | 仲介 |
| 引渡/入居時期 | 即時 | 現況 | 空家 |
| 地目 | 宅地 | 用途地域 | 第一種住居 |
| 都市計画 | 非線引き区域 | 地勢 | |
| 建ぺい率 | 60% | 容積率 | 200% |
| 土地権利 | 所有権 | 接道状況 | |
| 周辺環境 |
一ノ木戸小学校 第二中学校 |
||
| 設備・条件 | 都市ガス 公営水道 排水下水 | ||
| 物件番号 | |||
※物件掲載内容と現況に相違がある場合は現況を優先と致します。










